Omschrijving

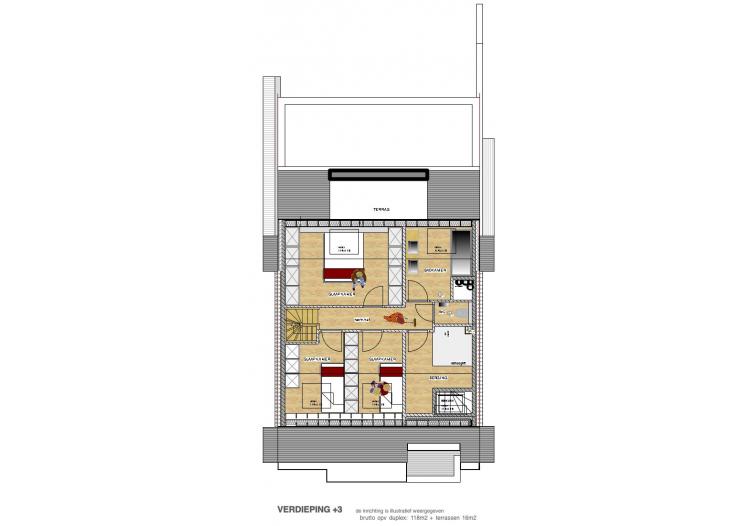
Prachtige LAGE-ENERGIE nieuwbouw PENTHOUSE-LOFT van 120m² met 3 slaapkamers en 2 terrassen. MET LIFT!

Mooi vergezicht over natuur en weilanden vanop achterste terras.

Uitzonderlijke breedte van +/- 8 meter voor ruimtelijk gevoel.

WERKEN voltooid, INSTAPKLAAR met volceramische italiaanse vloer en duitse hoogglans kwaliteitskeuken.

WONEN in het centrum van AARSCHOT en toch in´t GROEN.

Natuurgebeid op wandelafstand. Supermarkt Spar op 150 meter, grote markt op wandelafstand.

Uitgelezen kans om een prachtig eigendom te verwerven rechtstreeks van bouwheer aan zeer concurrentiële prijs.

Zeer licht en luchtig appartement met 3 volwaardige slaapkamers, dressing en ruime zonnige terrassen, één op het zuiden en één aan de straatkant.

Uitgelezen kans om een prachtig eigendom te verwerven rechtstreeks van bouwheer aan zeer concurrentiële prijs.

Prijzen exclusief 21% BTW maar inclusief TIP-TOP afwerking met HOOGWAARDIGE materialen!

Bel voor een vrijblijvend bezoek: 0495/530.264.

Financiële info

Geografische info

Adres Braekepoort 43, Bus 3
Gemeente Aarschot (3200)
Omgeving Stad

Verdieping 2

Badkamer 1
Living
Terras 16 m²

Verdieping 3

Slaapkamer 1
Slaapkamer 2
Slaapkamer 3

Overige Info

Vrij op bij oplevering
Orientatie tuin Z
Afstand tot openbaar vervoer 100 m
Afstand tot winkels 100 m
Afstand tot school 400 m

Bebouwing

Bebouwing gesloten
Bouwjaar 2013
Aantal slaapkamers 3
Nieuwbouw ja
Staat Nieuwe staat
Woonoppervlakte 120 m²
Elektrisch keuringsattest Verkregen, conform
Lage energiewoning ja

Comfort

Keukentype Geïnstalleerd
Verwarming Aardgas
Videofoon ja
Bijkeuken ja
Distributie ja
Lift ja

Ruimtelijke ordening

Bouwvergunning Ja
Recente bestemming Woongebied
Dagvaardingen Nee
Voorkooprecht Nee
Verkavelingsvergunning Ja
Effectief overstromingsgevoelig Nee
Mogelijk overstromingsgevoelig Nee
Afgebakend overstromingsgebied Nee
Afgebakende oeverzone Nee
Risicozone voor overstromingen Nee

Panden in de buurt